
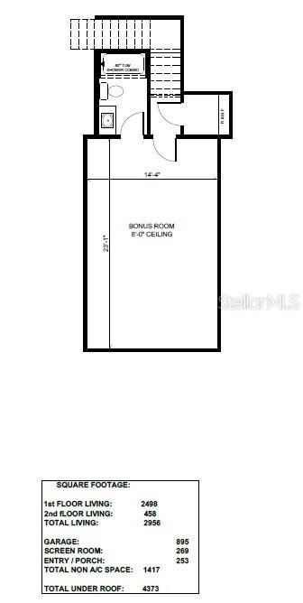
Pre-Construction. To be built. The stunning MODERN FARMHOUSE offers 2,956 sq ft of beautifully curated living space, designed with both comfort and style in mind. This thoughtfully planned layout includes 3 bedrooms, 3.5 baths, flex space, and a spacious second-floor bonus retreat-perfect for guests, a media room, or a quiet work-from-home escape. Throughout the home, you'll find soaring 10-foot ceilings, detailed crown molding, and upgraded baseboards that enhance the elevated, custom feel Kevc...Pre-Construction. To be built. The stunning MODERN FARMHOUSE offers 2,956 sq ft of beautifully curated living space, designed with both comfort and style in mind. This thoughtfully planned layout includes 3 bedrooms, 3.5 baths, flex space, and a spacious second-floor bonus retreat-perfect for guests, a media room, or a quiet work-from-home escape. Throughout the home, you'll find soaring 10-foot ceilings, detailed crown molding, and upgraded baseboards that enhance the elevated, custom feel Kevco is known for.Enjoy true lakefront living with approximately 117 feet of frontage on South Twin Lake in Umatilla-an ideal setting for peaceful mornings, sunset views, and the relaxed Florida lifestyle.The open-concept design centers around a gorgeous designer kitchen featuring quartz countertops, upgraded cabinetry, warm wood accents, a generous island, and stylish lighting. Wood-look flooring, shiplap details, and premium finishes flow seamlessly from room to room. The primary suite feels like a private retreat, offering a spa-inspired bath with a freestanding tub, walk-in shower with decorative tile inlay, dual vanities, and a spacious walk-in closet.This is a fantastic opportunity to build with Kevco and select YOUR own custom finishes and design options, ensuring the home reflects your personal style.Quality construction includes energy-efficient features, double-pane windows, premium trim work, and Kevco's signature craftsmanship. As Lake County's most award-winning and trusted custom home builder-with over 40 years of innovation, integrity, and excellence-Kevco continues to deliver exceptional value and enduring quality.Enjoy peaceful lake views, an optional HOA, and the rare combination of new construction, acreage, and waterfront living-all just minutes from Umatilla, Eustis, and Mount Dora.
View MoreCourtesy of
Agency Name: DUNN REALTY
Agency Contact: 352-343-0149
Agent Name: Genevieve Matos
Presented by
Agent Name: Kevin Spina
Agent Phone: Cell: 561.722.1169
Agency Title: The Keyes Company
Request Info
Send an email with a link to
Tbd Lot 01000 Silver Drive , Umatilla, FL 32784.
Email Tbd Lot 01000 Silver Drive , Umatilla, FL 32784
Thank you for your inquiry! As a thank you, we have a Special Mortgage Offer for You.
We would like to provide you a free, no-obligation, home loan pre-approval review.