
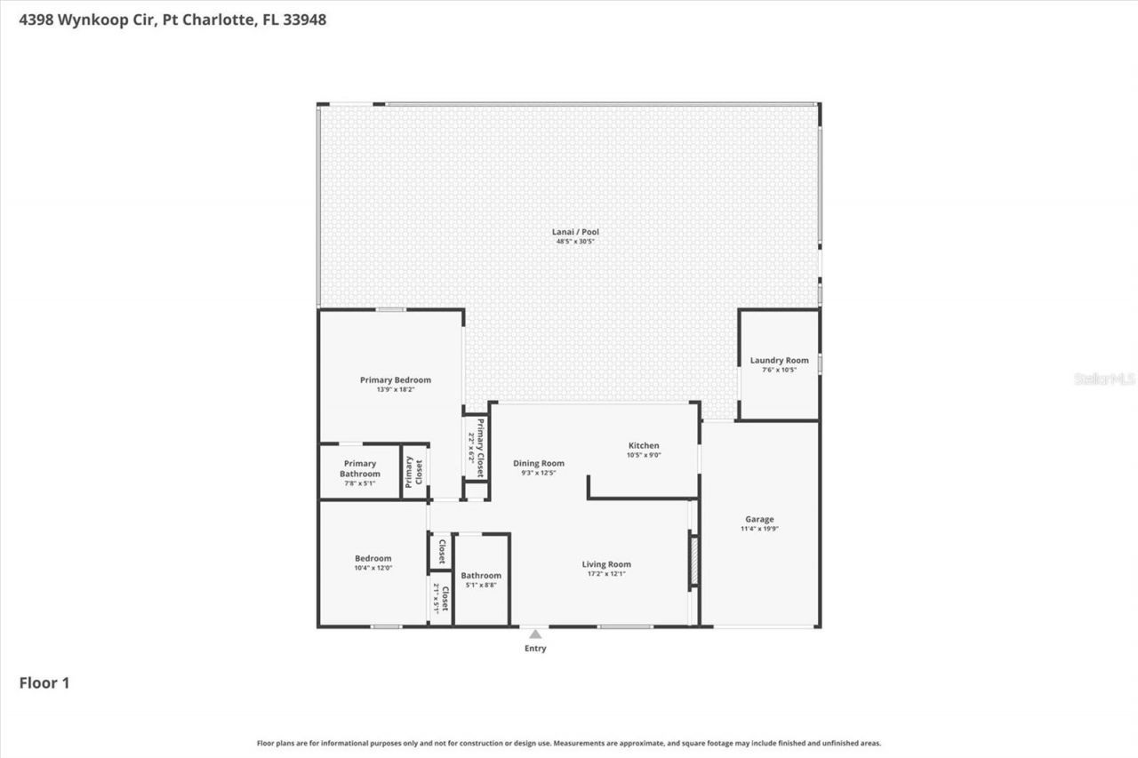
150 FEET OF WATERFRONT with QUICK access to open water! Live the ultimate Florida lifestyle in this move-in ready 2-bedroom, 2-bath waterfront pool home with direct canal access to Charlotte Harbor and the Gulf of Mexico. Boating enthusiasts will love the private dock with water & electric and covered boat lift, making it easy to get out on the water anytime. From the moment you walk in, you're greeted by gorgeous water views, setting the tone for this coastal retreat. Situated on a fantastic ov...150 FEET OF WATERFRONT with QUICK access to open water! Live the ultimate Florida lifestyle in this move-in ready 2-bedroom, 2-bath waterfront pool home with direct canal access to Charlotte Harbor and the Gulf of Mexico. Boating enthusiasts will love the private dock with water & electric and covered boat lift, making it easy to get out on the water anytime. From the moment you walk in, you're greeted by gorgeous water views, setting the tone for this coastal retreat. Situated on a fantastic oversized lot with a fenced backyard, this property offers privacy and space to enjoy your own special oasis. The kitchen features newer cabinets and countertops, and a double slider to the lanai, creating the ultimate indoor-outdoor flow for entertaining. Step outside to your large screened-in pool area, complete with two separate seating areas-perfect for relaxing or hosting guests. Beautiful tropical landscaping surrounds the space, offering privacy while you enjoy the pool. The pool was fully restored in 2024, and the roll-down storm shutters provide shade from the sun or added security when away. The meticulously maintained backyard has lush Bimini Bermuda grass that leads to your private dock-ideal for evening 'docktails, fishing, or simply soaking in the waterfront lifestyle. Extensive updates include, (2019) HVAC, (2021) fenced back yard, (2022) irrigation system, boat lift cover, (2023) roof, pool cage, pool restoration, pool heater, roll-down storm shutters, updated bathrooms, (2024) pool pump, water heater, Maytag washer & dryer, Whirlpool kitchen appliances, impact garage door, dock electrical rewired, interior & exterior paint, HVAC UV light & coil cleaning and in (2026) new attic insulation. This home has impact windows for added peace of mind. Thoughtfully upgraded, this home is the perfect blend of comfort, privacy, and true Florida waterfront living. Schedule your showing today and start living your coastal dream!
View MoreCourtesy of
Agency Name: REAL BROKER, LLC
Agency Contact: 855-450-0442
Agent Name: Adrienne Andreae
Presented by
Agent Name: Kevin Spina
Agent Phone: Cell: 561.722.1169
Agency Title: The Keyes Company
Request Info
Send an email with a link to
4398 Wynkoop Circle , Port Charlotte, FL 33948.
Email 4398 Wynkoop Circle , Port Charlotte, FL 33948
Thank you for your inquiry! As a thank you, we have a Special Mortgage Offer for You.
We would like to provide you a free, no-obligation, home loan pre-approval review.