
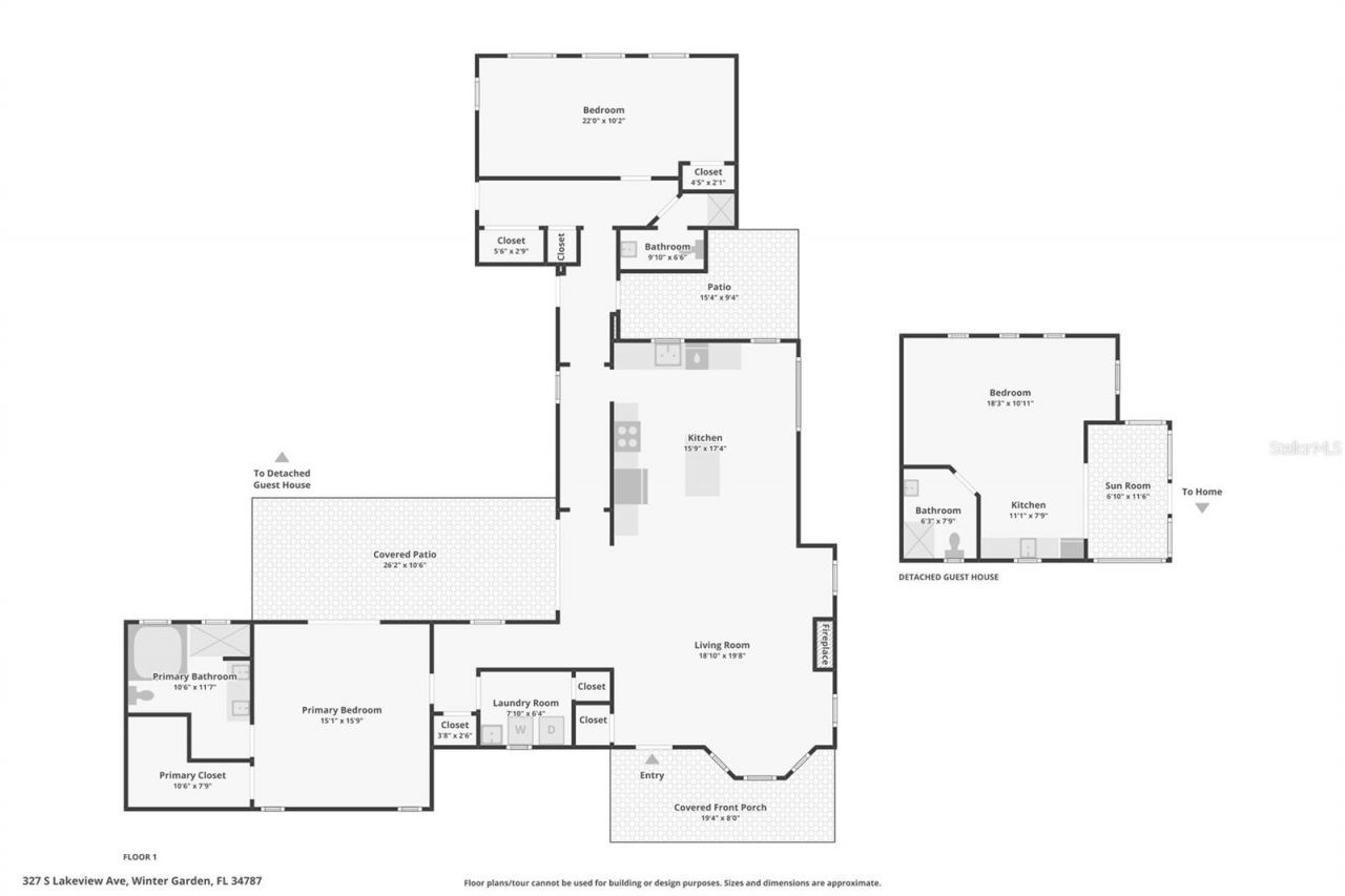
*Ask about a lender provided credit up to $12,500 on this home!* Welcome to 327 S Lakeview Ave, a rare opportunity in the heart of the golf cart district in Downtown Winter Garden. Built in 2014 and tastefully updated, this move-in ready property offers the perfect blend of character, comfort, and flexibility with no HOA. This unique property features a 2-bedroom, 2-bath main home plus a detached 1-bedroom, 1-bath guest cottage, ideal for buyers seeking a multi-generational home, income-producin...*Ask about a lender provided credit up to $12,500 on this home!* Welcome to 327 S Lakeview Ave, a rare opportunity in the heart of the golf cart district in Downtown Winter Garden. Built in 2014 and tastefully updated, this move-in ready property offers the perfect blend of character, comfort, and flexibility with no HOA. This unique property features a 2-bedroom, 2-bath main home plus a detached 1-bedroom, 1-bath guest cottage, ideal for buyers seeking a multi-generational home, income-producing property, or a home with an in-law suite. Situated on an oversized, fenced corner lot, the property is enhanced by lush, mature landscaping and a charming mini vineyard with sweet muscadine grapevines perfect for homegrown wine or fresh snacking. Inside, the main residence offers a desirable split floor plan with bright, open living spaces and abundant natural light. The inviting living room features a cozy fireplace perfect for relaxing evenings or entertaining guests. The spacious kitchen flows seamlessly into the main living area and is equipped with a gas range, making it ideal for home chefs. The private primary suite is tucked away, creating a peaceful retreat, while the secondary bedroom offers comfort and privacy for guests or family. The detached guest cottage features its own private entrance, making it ideal for rental income, a home office, or private accommodations for extended family. Step outside to the covered back patio, accessible from both the living area and primary suite perfect for entertaining and relaxing. Pre-plumbed with natural gas you can create your dream summer kitchen. The fully fenced backyard and garden space provide both privacy and room to enjoy Florida outdoor living. Located just blocks from the West Orange Trail, Plant Street Market, and the award-winning Winter Garden Farmers Market, you'll enjoy walkable access to top-rated restaurants, coffee shops, boutiques, and year-round community events. Whether you're searching for a primary residence with rental income potential, a flexible investment property, or a home with a guest house in Winter Garden, this property offers unmatched versatility in one of Central Florida's most sought-after locations. Don't miss your chance to own a home near Downtown Winter Garden with income potential and no HOA, schedule your private showing today.
View MoreCourtesy of
Agency Name: CHARLES RUTENBERG REALTY ORLANDO
Agency Contact: 407-622-2122
Agent Name: Ryan Leitter
Presented by
Agent Name: Kevin Spina
Agent Phone: Cell: 561.722.1169
Agency Title: The Keyes Company
Request Info
Send an email with a link to
327 S Lakeview Avenue , Winter Garden, FL 34787.
Email 327 S Lakeview Avenue , Winter Garden, FL 34787
Thank you for your inquiry! As a thank you, we have a Special Mortgage Offer for You.
We would like to provide you a free, no-obligation, home loan pre-approval review.