
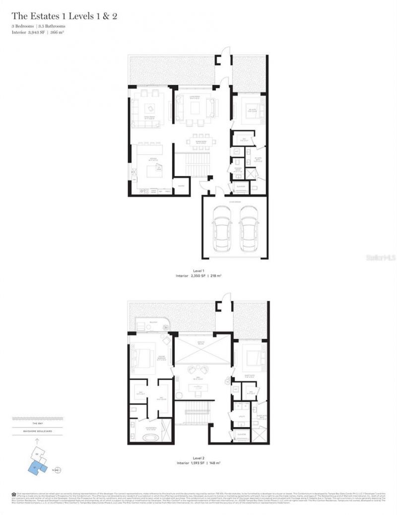
Under Construction. TOWER II. Soaring above the Iconic Bayshore Boulevard on Hillsborough Bay is The Ritz-Carlton Residences, Tampa, an oasis of sophistication that sets a new standard in exemplar design and gracious living. Inspired by the environment and composed for contemporary lifestyles, these breathtaking residences offer modern layouts, generous amenities. The Residences will be characterized by striking contemporary architecture by world-class firm Arquitectonica, exquisitely appointed ...Under Construction. TOWER II. Soaring above the Iconic Bayshore Boulevard on Hillsborough Bay is The Ritz-Carlton Residences, Tampa, an oasis of sophistication that sets a new standard in exemplar design and gracious living. Inspired by the environment and composed for contemporary lifestyles, these breathtaking residences offer modern layouts, generous amenities. The Residences will be characterized by striking contemporary architecture by world-class firm Arquitectonica, exquisitely appointed amenity spaces designed by the award-winning firm Meyer Davis Studio, and lush landscaping by renowned landscape artist, Enzo Enea. This is a private condo run like a hotel: 24-hour valet; 24-hour true concierge service; 24-hour separate security; 8-hour day pool and door man; chef on site for lunch and dinner with free continental breakfast. The Villas come with floor to ceiling windows, a 2-story living room; dining room and free-standing staircase. The Kitchen and Family Room open to a private enclosed large terrace and beautiful, lush streetscape and landscaping. The Villas are equipped with 3/4 bedrooms + den and 4.5 bathrooms. The third story has a huge entertaining room with a full bath that leads out to a large outdoor entertaining space with an outdoor kitchen and rooftop spa. The Villas include Sub Zero and Wolf appliances complemented by bespoke Stone or Quartz countertops, custom-designed Italian Cabinetry by ItalKraft, spacious walk-in closets, high-end Kohler plumbing fixtures, and full-size top-of-the-line washers and dryers. Estimated Completion: 2026
View MoreCourtesy of
Agency Name: THE TONI EVERETT COMPANY
Agency Contact: 813-839-5000
Agent Name: Toni Everett
Presented by
Agent Name: Kevin Spina
Agent Phone: Cell: 561.722.1169
Agency Title: The Keyes Company
Request Info
Send an email with a link to
3015 S Ysabella Avenue, Unit TH4, Tampa, FL 33629.
Email 3015 S Ysabella Avenue, Unit TH4, Tampa, FL 33629
Thank you for your inquiry! As a thank you, we have a Special Mortgage Offer for You.
We would like to provide you a free, no-obligation, home loan pre-approval review.