
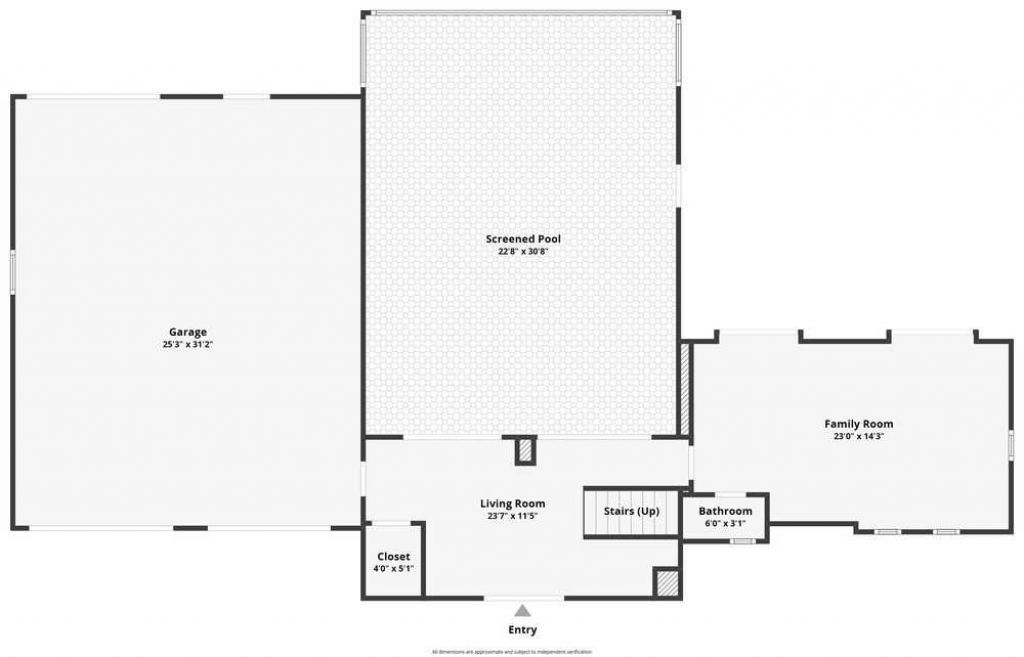
A stunning location with all attributes geared to the view of the beautiful open bay of Summerland Cove. This OCEANFRONT 3 bedroom 3 bath home is on the market for the first time since construction in 1996 and features an extensive renovation nearly complete. The property includes a stunning covered & heated pool with screened enclosure, a 28 foot concrete dock with davits, deep water boating access, a spacious 2 car garage(~700sqft), majority impact glass, and a standing seam metal roof instal...A stunning location with all attributes geared to the view of the beautiful open bay of Summerland Cove. This OCEANFRONT 3 bedroom 3 bath home is on the market for the first time since construction in 1996 and features an extensive renovation nearly complete. The property includes a stunning covered & heated pool with screened enclosure, a 28 foot concrete dock with davits, deep water boating access, a spacious 2 car garage(~700sqft), majority impact glass, and a standing seam metal roof installed June 2018 with 140 mph rating. The layout of the home includes a split floor plan with a generous master suite with a large walk-in closet and an ensuite with floor to ceiling Italian polished marble. There are 3 full baths upstairs, a spacious living room with a 3 paneled pocket slider that creates a seamless indoor to outdoor transition with the stunning ocean view. The kitchen remodel includes quartz counters, stainless appliances, and soft close cabinets & drawers. In addition to the pool & the garage, the downstairs expands the air-conditioned living with a family room & foyer with designed room to add an elevator as well as a covered outdoor kitchen on a pavered patio. With the current renovation nearing completion, this spectacular location is ready for new owners and their vision of a fabulous Florida Keys tropical retreat.
View MoreCourtesy of
Agency Name: Key West Sales, LLC
Agency Phone: (305) 731-3926
Agent Name: Caroline Bauer
Presented by
Agent Name: Kevin Spina
Agent Phone: Cell: 561.722.1169
Agency Title: The Keyes Company
Request Info
Send an email with a link to
24348 Caribbean Drive, Summerland Key, FL 33042.
Email 24348 Caribbean Drive, Summerland Key, FL 33042
Thank you for your inquiry! As a thank you, we have a Special Mortgage Offer for You.
We would like to provide you a free, no-obligation, home loan pre-approval review.