
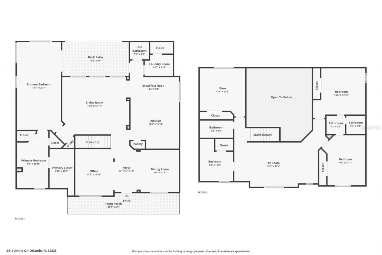
Welcome to this stunning David Weekley-built home in the highly desirable Northwest Village of Avalon Park, offering 3,052 total square feet of beautifully designed living space with 4 bedrooms, 3.5 bathrooms, a loft, and a bonus room. From the moment you arrive, the curb appeal stands out with an attractive paver walkway, lush landscaping with palm trees and a decorative boulder create a welcoming first impression. The full-length covered front patio stretches across the home, providing the per...Welcome to this stunning David Weekley-built home in the highly desirable Northwest Village of Avalon Park, offering 3,052 total square feet of beautifully designed living space with 4 bedrooms, 3.5 bathrooms, a loft, and a bonus room. From the moment you arrive, the curb appeal stands out with an attractive paver walkway, lush landscaping with palm trees and a decorative boulder create a welcoming first impression. The full-length covered front patio stretches across the home, providing the perfect place to relax and enjoy the neighborhood. Step inside to a bright and inviting foyer featuring engineered hardwood flooring that extends through to the great room. To the right is the formal dining room, beautifully finished with a chair rail and elegant paintwork, ideal for hosting gatherings. To the left, the formal living room currently functions as a stylish home office, highlighted by an accent wall. The main living area features soaring ceilings and dramatic high windows, complete with electric roll shades operated by a wall switch, filling the home with natural light. A custom wood accent wall adds warmth and character to the space. The open staircase with spindle railing enhances the home's open feel, and under-stair storage provides practical organization. The kitchen overlooks the main living space and features granite countertops, stainless steel appliances, tile backsplash, and large cabinetry with crown molding, including a glass-front display cabinet. A cozy kitchen nook provides the perfect space for casual dining. The primary suite is conveniently located on the first floor and has been extended to create an oversized retreat with conservation views and French door access to the covered patio. The primary bath offers a large garden tub, glass-enclosed shower, dual vanities, and a custom walk-in closet system. Upstairs, a spacious loft separates the bedrooms, creating ideal privacy and flexibility. One side of the home features two bedrooms connected by a Jack-and-Jill bathroom, while the opposite side includes a private bedroom with another full bath-perfect for guests or multigenerational living. A large bonus room adds even more flexibility and could serve as a media room, playroom, or additional home office. Outdoor living is just as impressive. The back patio features a beautiful tongue-and-groove wood ceiling, recessed lighting, and an electric roll shade, allowing the space to function as a fully screened outdoor living area with peaceful conservation views. A long rear-entry driveway leads to a two car garage with plenty of parking. This home has been thoughtfully upgraded over time, including two AC units (2019), a new roof and gutters (2025), new water heater (2026), updated lighting and fans throughout, along with interior and exterior paint. Avalon Park is a community with very desirable school zones. Community amenities include basketball courts, tennis courts, racquetball courts, playgrounds, sand volleyball court, splash pad, baseball and soccer fields, community center, walking and biking trails. HOA FEES INCLUDE CABLE & INTERNET. Ask your agent for the Upgrade List & make an appointment to see this home today!
View MoreCourtesy of
Agency Name: THE WILKINS WAY LLC
Agency Contact: 407-874-0230
Agent Name: William Wygle
Presented by
Agent Name: Kevin Spina
Agent Phone: Cell: 561.722.1169
Agency Title: The Keyes Company
Request Info
Send an email with a link to
2419 Antlia Drive, Orlando, FL 32828.
Email 2419 Antlia Drive, Orlando, FL 32828
Thank you for your inquiry! As a thank you, we have a Special Mortgage Offer for You.
We would like to provide you a free, no-obligation, home loan pre-approval review.