
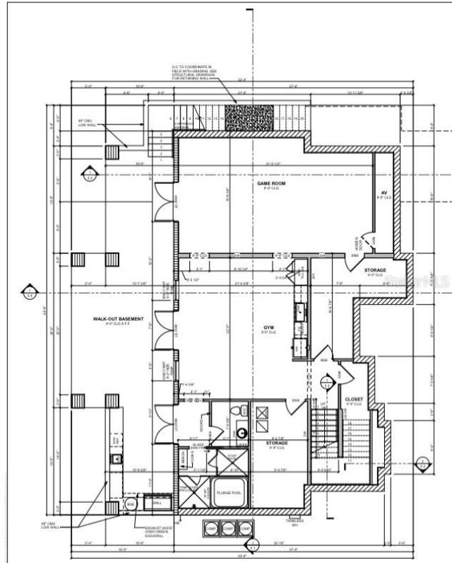
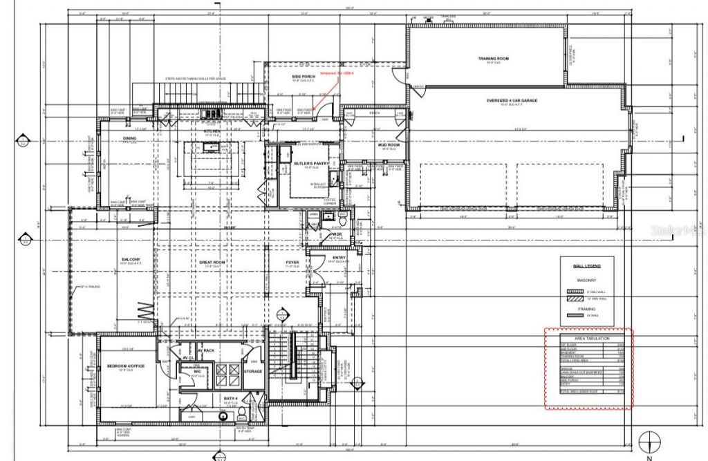
Under Construction. 17710 Broad Street | Montverde, FLA Private Gated Lakefront Estate Unlike Anything Else in Central Florida-Some properties are rare because of location.Some are rare because of construction.This one is rare because of both.-Currently under construction by Burton Construction - one of the select builders approved to build in the Isleworth community in Windermere, Florida, and other premier neighborhoods throughout Central Florida - this three-story lakefront estate represents ...Under Construction. 17710 Broad Street | Montverde, FLA Private Gated Lakefront Estate Unlike Anything Else in Central Florida-Some properties are rare because of location.Some are rare because of construction.This one is rare because of both.-Currently under construction by Burton Construction - one of the select builders approved to build in the Isleworth community in Windermere, Florida, and other premier neighborhoods throughout Central Florida - this three-story lakefront estate represents a level of structural integrity and architectural intention that is seldom seen in today's market.-This is not standard residential framing.-The home is constructed entirely of solid CMU concrete from foundation to roofline, supported by substantial structural footings and a fully formed walkout lower level engineered for durability and storm resilience. True reinforced construction on open water in Central Florida is uncommon - and immediately recognizable when you see it.-The architectural vision was developed by a designer whose past work includes some of the most iconic and recognized destination environments in Central Florida. That experience shows - in the arrival sequence, in the framing of views, in the way light and elevation are used to create emotional impact. You can feel that this home was conceived by someone accustomed to designing spaces that leave lasting impressions.-A private front entry gate is planned, creating complete separation from the outside world. Once inside, the noise falls away.-What remains is approximately 140 feet of direct Lake Apopka frontage and nearly ten miles of uninterrupted open water.-The third-floor primary suite is intentionally elevated and positioned to capture panoramic sunrise views across the lake, framed through a mature lakeside canopy. Each morning, light rises over open water visible from your private retreat above it all. The elevation provides privacy, expansive exposure, and a perspective rarely available in Central Florida waterfront homes.-The walkout lower level transitions seamlessly to a planned infinity-edge pool terrace overlooking the lake - dramatic above, engineered below.-Lake Apopka connects directly to the Harris Chain of Lakes, offering extensive freshwater boating access throughout Central Florida's interconnected lake system.-And then there is timing.- Infrastructure improvements are already underway in Montverde. This residence sits on the front side of meaningful area expansion - before surrounding growth reshapes the landscape.-Opportunities to secure privately gated, solid-concrete, custom lakefront construction outside of an HOA in this corridor are extremely limited.-Projected completion is expected near year-end. Buyers may personalize nearly all non-structural finishes prior to completion, allowing customization within an already engineered structural framework.-Approx. 6,500 sq ft3 StoriesSolid CMU concrete constructionWalkout lower levelDesigned infinity-edge poolApprox. 140 ft of lake frontagePrivate entry gateNo HOA-This is not just another waterfront home.-It is a structurally reinforced, architecturally intentional estate built by a builder trusted in Isleworth and other premier Central Florida communities - positioned at a moment in time that will not repeat itself easily.-Opportunities like this do not surface often.
View MoreCourtesy of
Agency Name: BURTON REALTY GROUP LLC
Agency Contact: 352-404-7305
Agent Name: Kyle Burton
Presented by
Agent Name: Kevin Spina
Agent Phone: Cell: 561.722.1169
Agency Title: The Keyes Company
Request Info
Send an email with a link to
17710 Broad Street, Montverde, FL 34756.
Email 17710 Broad Street, Montverde, FL 34756
Thank you for your inquiry! As a thank you, we have a Special Mortgage Offer for You.
We would like to provide you a free, no-obligation, home loan pre-approval review.