
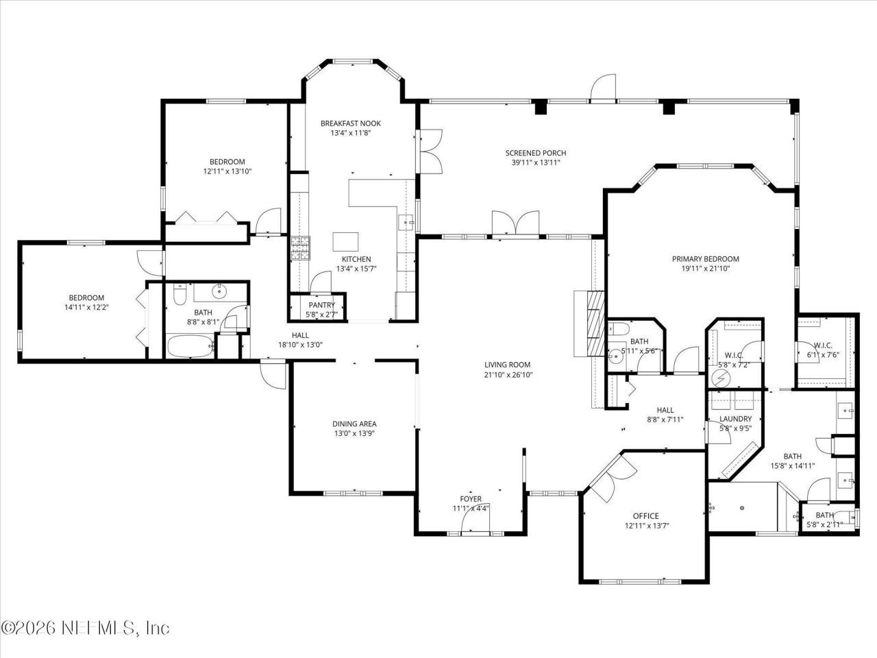
Timeless Elegance in a Private Gated Community. Set Beneath a Canopy of Majestic Oaks in a Private, Gated Enclave, This Beautifully Custom Crafted Single-Story Brick Residence Offers an Exceptional Blend of Sophistication, Comfort, and Thoughtful Design. Spanning 3,113 Square Feet, The Home Features 3 Bedrooms, 21/2 Baths, and a Private Den, All Designed with Refined Living and Effortless Entertaining in Mind. From the Moment You Enter, The Home's 10-foot Ceilings, Rich Hardwood Floors, and Eleg...Timeless Elegance in a Private Gated Community. Set Beneath a Canopy of Majestic Oaks in a Private, Gated Enclave, This Beautifully Custom Crafted Single-Story Brick Residence Offers an Exceptional Blend of Sophistication, Comfort, and Thoughtful Design. Spanning 3,113 Square Feet, The Home Features 3 Bedrooms, 21/2 Baths, and a Private Den, All Designed with Refined Living and Effortless Entertaining in Mind. From the Moment You Enter, The Home's 10-foot Ceilings, Rich Hardwood Floors, and Elegant Crown Molding Create a Sense of Warmth and Architectural Character Throughout the Main Living Spaces. The Expansive Living Room Serves as a Welcoming Gathering Space, highlighted by a Wood-Burning Fireplace, Custom Built-In Cabinetry and French Doors that Open Seamlessly to the Outdoor Patio, Inviting Natural Light and Tranquil Views. At the Heart of the Home is a Well-Appointed Gourmet Kitchen Designed for Both Beauty and Functionality. Outfitted with Stainless Steel Appliances, a Five-Burner Gas Cooktop with Automatic Exhaust Fan, Built-In Wall Oven and Microwave, Granite Countertops and a Center Island, All Complemented by a Walk-In Pantry, Perfect for Everyday Convenience and Entertaining. The Primary Suite Offers a Private Retreat, Featuring Vaulted Ceilings and Two Generous Walk-In Closets. The Spa-Inspired Primary Bathroom Includes Dual Vanities, Linen Closet and a Spacious Roll-In Shower with Dual Shower Heads, Built-In Seating Bench, and Custom Niches, Delivering Comfort with Elegant Design. A Separate Den with French Doors Provides Flexible Space Ideal for a Home Office, Library or Media Room. Outdoor Living is Equally Inviting with a Large Covered and Screened Tiled Patio, offering a Peaceful Place to Relax While Enjoying the Surrounding Natural Landscape. The Oversized Two-Car Garage Offers Storage Cabinets, Epoxy Flooring, Ceiling Fans and Pull-Down Attic Access. Additional Features Include an Irrigation System Supplied by a Shared Well, Paver Driveway with An Additional Circular Paver Front Drive and a Night Owl Outdoor Security System Along with An Indoor Security System. Surrounded by Natural Beauty and Mature Oak Trees, This Elegant Residence Offers the Rare Opportunity to Enjoy Privacy, Tranquility and Timeless Craftsmanship within a Peaceful Gated Community All Within Minutes to Beaches, Shopping, Restaurants and Historic Downtown.
View MoreCourtesy of
Agency Name: KELLER WILLIAMS REALTY ATLANTIC PARTNERS ST. AUGUSTINE
Agent Name: FRANK PEREZ-ANDREU
Presented by
Agent Name: Kevin Spina
Agent Phone: Cell: 561.722.1169
Agency Title: The Keyes Company
Request Info
Send an email with a link to
125 Island Hammock Way, Saint Augustine Beach, FL 32080.
Email 125 Island Hammock Way, Saint Augustine Beach, FL 32080
Thank you for your inquiry! As a thank you, we have a Special Mortgage Offer for You.
We would like to provide you a free, no-obligation, home loan pre-approval review.