
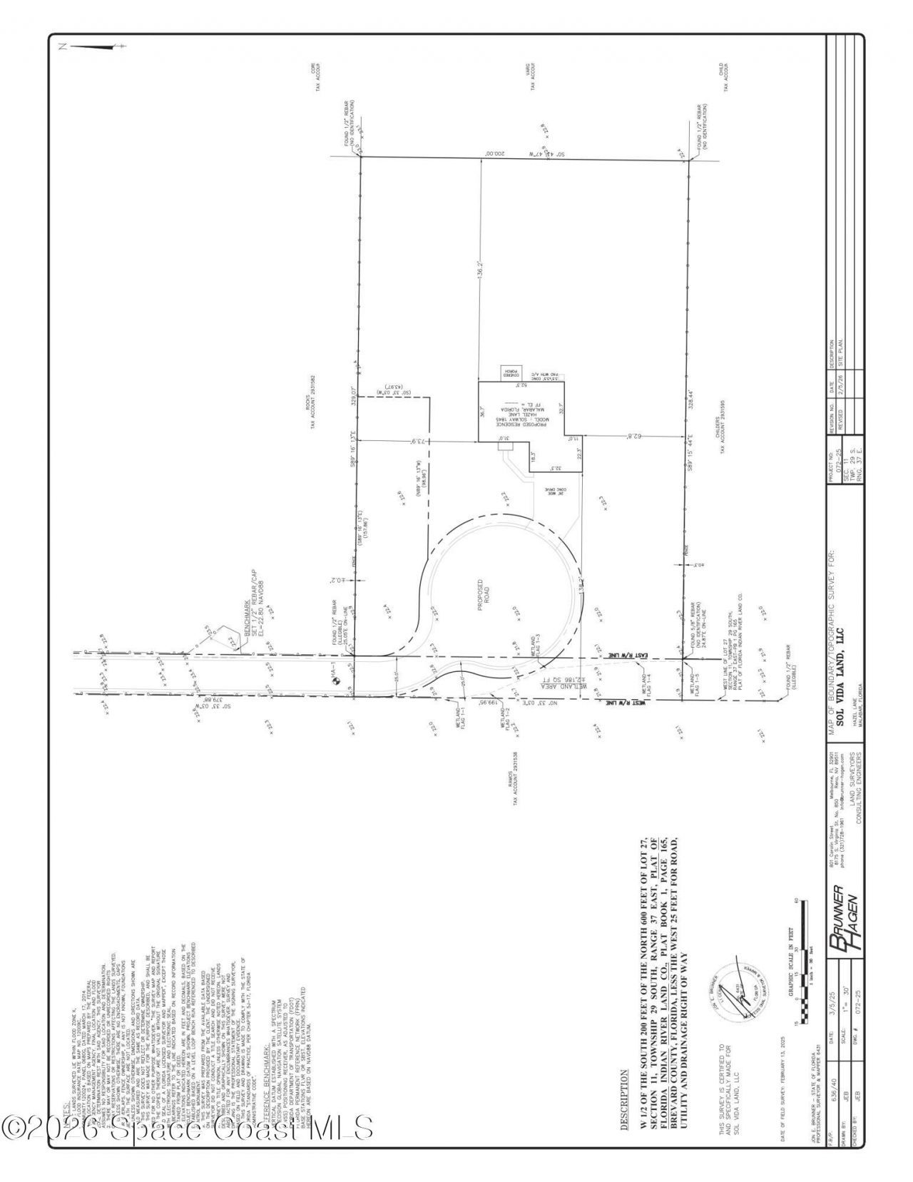
Brand New Custom Construction | 4-Car Garage | 1.4 Acre Lot | Completion Summer 2026. Experience luxury living in this stunning to be built custom home, situated on an expansive 1.4-acre lot in a private nature setting. This home features high-end finishes, thoughtful design, and builder warranties for peace of mind. Step inside to an open-concept floor plan with vaulted and soaring ceilings, fireplace, creating a bright and spacious atmosphere perfect for modern living and entertaining. The des...Brand New Custom Construction | 4-Car Garage | 1.4 Acre Lot | Completion Summer 2026. Experience luxury living in this stunning to be built custom home, situated on an expansive 1.4-acre lot in a private nature setting. This home features high-end finishes, thoughtful design, and builder warranties for peace of mind. Step inside to an open-concept floor plan with vaulted and soaring ceilings, fireplace, creating a bright and spacious atmosphere perfect for modern living and entertaining. The designer kitchen is a true centerpiece, featuring: Large center island, Quartz countertops, 42 custom wood cabinets with crown molding, Stainless steel appliances, Extended wet bar with sink and beverage cooler. The split-bedroom layout provides privacy, while the luxurious primary suite includes: Elegant tray ceiling, Large walk-in closets, Double sink Quartz vanity, Custom tiled walk-in shower. Additional highlights include: Upgraded 9 x 47 hardwood-style porcelain plank tile throughout main living areas,waterfall edge island, Hurricane shutters, Oversized truss-covered porch ideal for outdoor living, Massive 4-car garage. The large lot provides plenty of space for a future pool, plus room to store a boat or RV on property. Seller offering closing cost incentives when using the preferred lender. This exceptional home combines modern coastal design, quality craftsmanship, and space to live, entertain, and grow.
View MoreCourtesy of
Agency Name: Waterman Real Estate, Inc.
Agency Phone: 321-215-2100
Agent Name: Vera L Koon
Presented by
Agent Name: Kevin Spina
Agent Phone: Cell: 561.722.1169
Agency Title: The Keyes Company
Request Info
Send an email with a link to
0 Hazel Lane , Malabar, FL 32950.
Email 0 Hazel Lane , Malabar, FL 32950
Thank you for your inquiry! As a thank you, we have a Special Mortgage Offer for You.
We would like to provide you a free, no-obligation, home loan pre-approval review.